College administrators made plans for the remodel, which is funded by an anonymous donor, after receiving the results of a survey created by the Student Advisory Committee that asked what improvements students wanted to see in Collis, according to Newlove.
Renovations will allow Collis to use the air handler that currently supplies the Class of 1953 Commons with air conditioning and heating.
"I've been here for 12 years," Newlove said. "When it gets hot, it gets hot. It really is stifling in the atrium."
The survey also reflected student concerns about congestion and student traffic, Newlove said. Students feel that there is an insufficient amount space and number of seats in Collis Cafe, he said.
"There have been a lot of conversations with students," he said. "Collis has needed remodeling for a long time."
The ventilation is the primary focus of the remodeling project, Newlove said. The estimated cost of the project has not yet been determined, but the heating and cooling system will be considered first when appropriating funds.
"Whatever money is left will go toward upgrading the Cafe and social spaces, such as the TV room and Fuel," Newlove said.
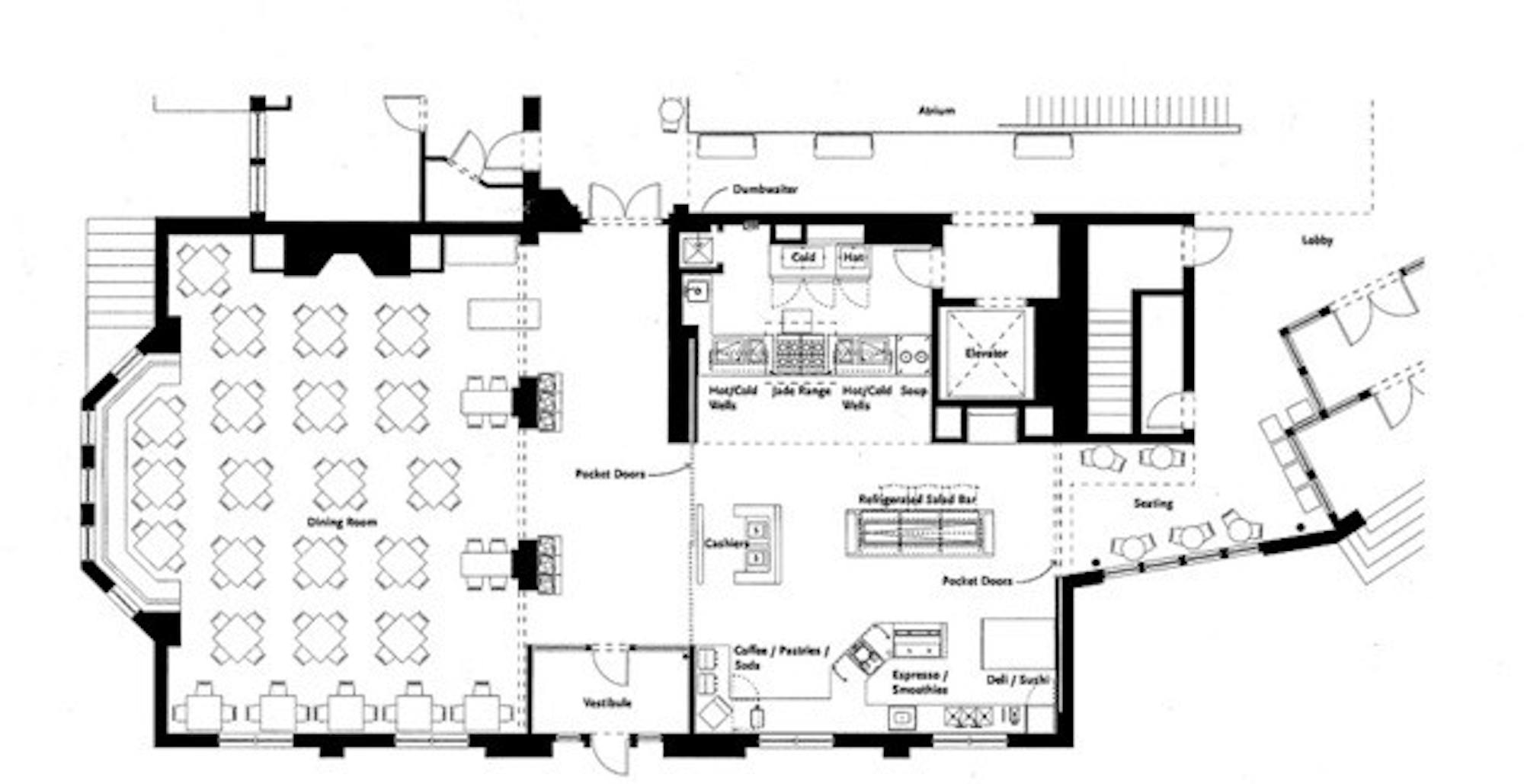
Reconstruction of Collis Cafe will include removing the food service area's east side wall and expanding it into the dining space on the other side, according to Newlove. The sushi bar will be moved from the main dining space to the food service area, allowing more dining tables to be placed in the dining room.
Newlove said that the large circular dining tables will be replaced by smaller square tables, allowing more seating in the centralized dining area.
Collis' food offerings will not change, according to Newlove, but the Collis staff will look to obtain more cooking equipment in order to serve food faster.
"We're not really messing with what's working," Newlove said. "We will keep everything that exists on the menu with the goal of increasing the flow of people."
This renovation will also make the transition between dinner and late-night dining at Collis more efficient.
"It's like setting up for a new restaurant," Newlove said. "We are hoping to make things run faster with the new layout."
The College will be in charge of the actual renovations, Newlove said, but he has worked out the table layout and the kitchen equipment.
The dates on which construction is set to begin and the timeline for the renovations have not yet been determined, according to Newlove.
"The heating/cooling system is very complicated and we are looking to make these changes in less than three months, with minimal impact," Newlove said.
During the construction period, Collis Cafe itself will be closed, but the kitchen will remain open, according to Newlove. Food will be served in Collis Common Ground, as a way to keep Collis open for students on campus.
Students interviewed by The Dartmouth said that the renovations will make dining at Collis Cafe more efficient and enjoyable.
"I think it would be very beneficial if Collis were expanded," Sophie Palitz '13, who eats at Collis daily, said. "The lines for everything are always very long, and there's no space. During normal lunch or dinner hours, you can't physically walk from the entrance to the exit without having to push through people."
Ben Page '12, however, said that although he thinks that Collis Cafe is "incredibly small" for the amount of traffic and the amount of food that is served, "after having spent a year and a half dealing with construction projects in Foco, [he] would not be excited to hear that Collis is about to close for its own renovations."
Page also suggested that Collis should include more ping-pong tables and pool tables.
"I think there should be more public space on campus to hang out without eating," he said.



